11 2023-03
高頻脫水篩在使用的過程中出現了出料慢的情況,那么是什么原因引起的呢? (脫水篩原理)
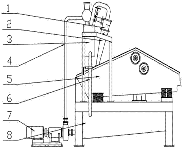
高頻脫水篩在使用的過程中出現了出料慢的情況,那么是什么原因引起的呢? (脫水篩原理) 有朋友問高頻脫水篩在使用的...
脫水、脫介、脫泥
專業專注脫水篩機生產設計







高頻脫水篩在使用的過程中出現了出料慢的情況,那么是什么原因引起的呢? (脫水篩原理) 有朋友問高頻脫水篩在使用的...
高頻脫水篩在使用的過程中出現了出料慢的情況,那么是什么原因引起的呢? (脫水篩原理) 有朋友問高頻脫水篩在使用的...
脫水篩篩箱斷裂的原因! (脫水篩常見故障) 有朋友問脫水篩篩箱斷裂的原因! 今天針對這個問題做下分享,讓您了解脫...
脫水篩的安裝使用與后期如何維護 (脫水篩工作原理視頻) 有朋友問脫水篩的安裝使用與后期如何維護 今天針對這個問題...
雙層高頻脫水振動篩詳細介紹以及工作原理 (振動脫水機) 有朋友問雙層高頻脫水振動篩詳細介紹以及工作原理 今天針對...